
Пороховые заводы требуют особо надежной молниезащиты. Причина понятна: прямой удар молнии в объект, на котором производится порох, может мгновенно привести к возгоранию и взрыву.
Недавно Технический центр ZANDZ получил задачу рассчитать молниезащиту такого объекта, обеспечив надежность системы не менее 0,99. Мы предложили решение, которое рассмотрим ниже.
Пример расчета молниезащиты порохового завода в Центральном ФО
Объект: пороховой завод.

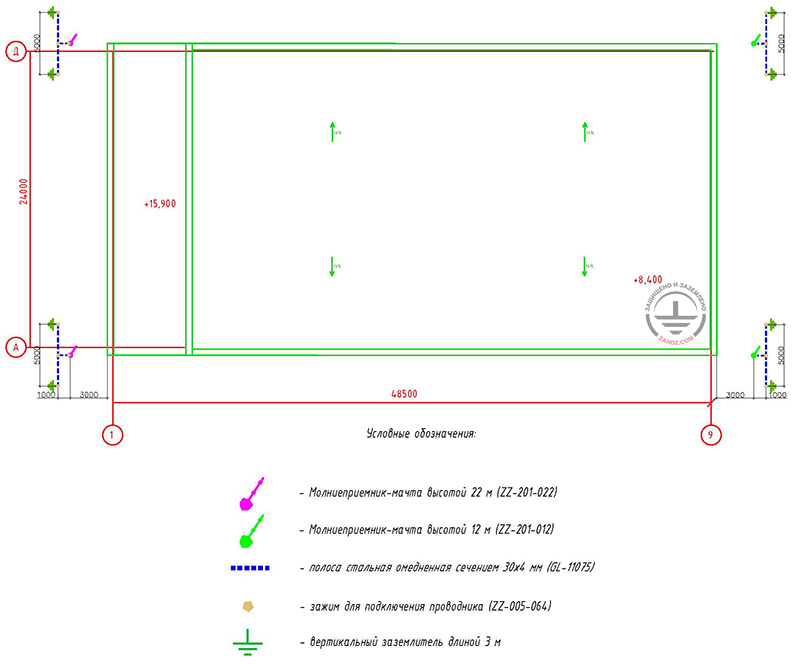
Рисунок 1 - План объекта.
Задача: Выполнить расчеты системы молниезащиты порохового завода.
Защита зданий от разрядов молнии осуществляется с помощью отдельностоящих молниеприемников.
Решения по обеспечению требований к системе молниезащиты порохового завода:
1. Молниезащита выполнена в соответствии с ПУЭ 7-е изд., СО 153-34.21.122-2003 «Инструкция по устройству молниезащиты зданий, сооружений и промышленных коммуникаций» (далее СО) и РД 34.21.122-87 «Инструкция по устройству молниезащиты зданий и сооружений» (далее РД).
2. Объект относится к I категории молниезащиты. Надежность системы должна быть не менее 0,99.
3. Молниезащита объекта выполнена при помощи 2-х вертикальных отдельностоящих молниеприемников-мачт высотой 22 м и 2-х вертикальных отдельностоящих молниеприемников-мачт высотой 12 м.
4. В качестве заземляющего устройства используются 2 вертикальных омедненных стальных электрода длиной 3 м, объединенных горизонтальным заземлителем (омедненная стальная полоса сечением 30х4 мм).
5. При наличии ж/б конструкций их необходимо присоединить к токоотводам/заземляющему устройству.
6. Подключение к заземляющему устройству выполняется при помощи зажимов ZZ-005-064.
Итоги расчета, проведенного с помощью программного обеспечения, разработанного ОАО «Энергетический институт им. Г.М.Кржижановского» (ОАО «ЭНИН»):
Плотность разрядов молнии в землю - 4 уд/кв.км в год.
Полное число ударов в систему - 0,092 (раз в 11 лет).
Суммарное число прорывов - 0,00051 (раз в 1961 лет).
Вероятность прорыва в объекты системы – 0,0056.
Надежность системы - 0.9944.
На рисунке 2 показано расположение оборудования.
В таблице 1 приведен перечень необходимого оборудования и материалов.

Рисунок 2 - Расположение оборудования для молниезащиты порохового завода.
Таблица 1 – Перечень потребности в материалах.
| Поз. | Изображение | Обозначение | Наименование | Кол. |
| 1. | ![]() |
ZZ-201-022 | ZANDZ Молниеприемник вертикальный 22 м (оцинк. сталь; с закладными под фундамент) | 2 |
| 2. | ![]() |
ZZ-201-012 | ZANDZ Молниеприемник вертикальный 12 м (оцинк. сталь; с закладными под фундамент) | 2 |
| 3. | ![]() |
GL-11075-20 | GALMAR Полоса омеднённая (30*4 мм / S 120 мм²; бухта 20 метров) | 2 |
| 4. | ![]() |
ZZ-001-065 | ZANDZ Штырь заземления омедненный резьбовой (D14; 1,5 м) | 16 |
| 5. | ![]() |
ZZ-002-061 | ZANDZ Муфта соединительная резьбовая | 9 |
| 6. | ![]() |
ZZ-003-061 | ZANDZ Наконечник стартовый | 8 |
| 7. | ![]() |
ZZ-004-060 | ZANDZ Головка направляющая для насадки на отбойный молоток | 4 |
| 8. | ![]() |
ZZ-005-064 | ZANDZ Зажим для подключения проводника (до 40 мм) | 17 |
| 9. | ![]() |
ZZ-006-000 | ZANDZ Смазка токопроводящая | 1 |
| 10. | ![]() |
ZZ-007-030 | ZANDZ Лента гидроизоляционная | 4 |
| 11. | ![]() |
ZZ-008-000 | ZANDZ Насадка на отбойный молоток (SDS max) | 1 |
У вас возникли вопросы по молниезащите пороховых заводов? Обращайтесь за помощью в Технический Центр ZANDZ!
Смотрите также:
- МОЛНИЕЗАЩИТА И ЗАЗЕМЛЕНИЕ ЦЕНТРАЛЬНОГО ТЕПЛОВОГО ПУНКТА
- МОЛНИЕЗАЩИТА ЗДАНИЯ ОЧИСТНЫХ СООРУЖЕНИЙ В МОСКОВСКОЙ ОБЛАСТИ
- МОЛНИЕЗАЩИТА ЗДАНИЯ ВАХТОВЫХ БРИГАД В ЯНАО
[ Код новостного блока для вставки на Ваш сайт ] [ RSS лента для подписки на новости ]











