Современные спортивные объекты редко состоят только из обособленного стадиона. Правилом при создании таких объектов стало проектирование в виде инфраструктурного комплекса, состоящего из спортивной арены, гостиниц, паркингов и транспортных развязок.
Компактное расположение на одной площадке удобно не только для посетителей и владельцев, но и позволяет сократить расходы, например, на молниезащиту.
Технический центр ZANDZ предложил решение по молниезащите центра водного спорта. Молниеприемники были расположены на зданиях гостиниц, расположенных по периметру, благодаря этому в зону защиты вошли стадион и паркинг.
Ознакомьтесь с описанием решения из новости.
Задача
Произвести расчет молниезащиты центра водного спорта
Решение
Расчеты молниезащиты центра водного спорта произведены в соответствии со следующими документами:
- «Правила устройства электроустановок» ПУЭ 7-е изд. (далее — ПУЭ).
- «Инструкция по устройству молниезащиты зданий, сооружений и промышленных коммуникаций» СО 153-34.21.122-2003 (далее — СО).
- «Инструкция по устройству молниезащиты зданий и сооружений» РД 34.21.122-87 (далее — РД).
Для защиты центра водного спорта от ударов молнии используются молниеотводы. Молниеотвод состоит из молниёприёмника, перехватывающего разряд молнии, токоотвода и заземлителя. Все эти элементы позволяют безопасно отвести ток молнии в землю без ущерба для защищаемого объекта.
Центр водного спорта относится к обычным объектам с точки зрения молниезащиты в соответствии с СО и к 3-ей категории согласно РД.
Описание системы молниезащиты центра водного спорта
Комплекс мероприятий по обеспечению необходимых требований к системе молниезащиты представлен следующими решениями:
- Выполняется установка 25 стержневых молниеприёмников высотой 8 м, крепящихся к стене. Учтено, что на крепление уходит 1,5 м высоты молниеприёмника.
- Молниеприёмники соединяются между собой для организации двух токоотводов с применением стальной оцинкованной проволоки D=8 мм от каждого молниеприёмника. Крепление токоотводов производится (шаг установки 0,6-1 м):
- к стенам с помощью зажимов GL-11703A.
- Соединение и разветвление токоотводов производится с использованием зажимов GL-11551А.
Комплекс мероприятий по обеспечению необходимых требований к заземляющему устройству представлен следующими решениями:
- Монтаж заземляющего устройства, состоящего из горизонтального электрода (полоса стальная оцинкованная сечением 4x30 мм), глубина 0,5 метра прокладываемого по периметру здания на расстоянии 1 м от фундамента.
- В соответствии с пунктом 2.13 РД достаточно только контура без установки вертикальных электродов.
- Соединение горизонтальных электродов между собой осуществляется с помощью зажима ZZ-005-064.
- Соединение токоотвода с выводом оцинкованной полосы из земли осуществляется с помощью контрольного зажима GL-11562A.
- Конструкция заземляющего устройства соответствует пункту 1.7.55 ПУЭ. Заземляющие устройства защитного заземления и заземления для молниезащиты выполняются общими.
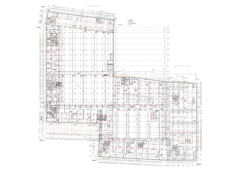
Расположение элементов системы молниезащиты и заземляющего устройства показано на рисунке 1. Изображенная зона защиты соответствует зоне Б, построенной в соответствии с приложением 3 РД.
Рисунок 1. План молниезащиты центра водного спорта
Комплектующие для молниезащиты центра водного спорта
| № | Артикул | Наименование | Количество, шт. |
| Система молниезащиты | |||
| 1. | ZZ-201-008-3 | Молниеприёмник-мачта ZANDZ вертикальный 8 м с комплектом из 2х креплений к стене (нерж. сталь) | 25 |
| 2. | ZZ-202-002 | ZANDZ Зажим к молниеприёмнику D42 мм для токоотводов (нержавеющая сталь) | 25 |
| 3. | ZZ-502-008-125 | Проволока ZANDZ стальная оцинкованная (D 8 мм / S 50 мм²; бухта 125 м) | 24 |
| 4. | GL-11703A | GALMAR Зажим к фасаду/стене для токоотвода с возвышением (высота 15 мм; оцинк. сталь с покраской) | 3000 |
| 5. | GL-11551A | GALMAR Зажим для соединения токоотводов (крашенная оцинкованная сталь) | 50 |
| 6. | GL-11562A | GALMAR Зажим контрольный для соединения токоотводов проволока + полоса (крашенная оцинкованная сталь) | 19 |
| Заземляющее устройство | |||
| 7. | ZZ-005-064 | ZANDZ Зажим для подключения проводника (до 40 мм) | 40 |
| 8. | ZZ-502-304-52 | Полоса ZANDZ стальная оцинкованная (30*4 мм; бухта 52 м) | 19 |
| 9. | ZZ-007-030 | ZANDZ Лента гидроизоляционная | 14 |
У вас возникли вопросы по заземлению и молниезащите центра водного спорта? Обращайтесь в Технический Центр ZANDZ!
Смотрите также:



