Текст вебинара. Страница 3
Быстрая навигация по слайдам:
— Для понимания я сейчас покажу небольшой слайд. Такой слайд – свойства осей и уровней. И собственно у нас каждый элемент оси, каждый экземпляр оси состоит из двух семейств. Это системное семейство и это загружаемое семейство. Сама плоскость является системным семейством, помните? На предыдущем вебинаре я рассказывал, что семейное семейство у нас всегда присутствует в проекте, их нельзя полностью удалить, а загружаемое семейство можно полностью удалить, можно загружать извне и так далее. Собственно системное семейство у нас является этой линией, точнее линией в проекции, на самом деле плоскостью. А загружаемое семейство – это этот элемент обозначения. Почему сделано таким образом? Потому что оси у нас используются где угодно и в любых фирмах в любой стране этот элемент универсален. А обозначение, оно не универсально, оно может отличаться. Допустим, как здесь приведено несколько примеров осей. Это ось с диаметром 8 мм, с диаметром 10 мм, может быть какая-то двойная ось, если нужна для каких-то габаритных размеров и так далее. Мы можем это обозначение менять, причем в любом случае этот элемент будет являться семейством оси.

— Выделим ось, которую я создал. Вот наше обозначение, вот наша сама ось. Если мы зайдем в свойства типа данной оси, свойства типа у нас присутствуют в кнопке «Изменить тип», нажимаем на ее и здесь присутствуют некоторые параметры данного типа оси.

— Сверху этого окна мы можем прочитать, какое это семейство. Видно, что это «Системное семейство: Ось сетки». Далее под ним мы видим типы данного семейства. Если раскроем этот список, то видим, что их несколько: три типа по 8 мм и три типа по 10 мм. 8 мм и 10 мм – это обозначения, диаметр этого круга. И как раз в параметрах данного семейства оси мы выбираем обозначения. Обозначения являются загружаемым семейством. Мы можем также раскрыть этот список и здесь можем увидеть, что здесь можем поставить семейство с диаметром 8 мм, семейство с диаметром 10 мм. И еще одно семейство заголовок «Ось сетки» окружность 5 мм, если я с такими настройками нажму «Ок», конечно, разницы не видно, но в принципе видно, что ось изменяется. Изменяется ее шрифт и изменяется диаметр окружности. Но теперь, где посмотреть сами загружаемые семейства? Где они находятся? Все загружаемые семейства, которые мы когда-либо загружали в этот проект, находятся в «Диспетчере проекта». Закроем это окно.

— В «Диспетчере проектов» у нас есть специальная вкладка «Семейства», раскрываем ее и у нас здесь большим списком представлены все семейства. Здесь, конечно, не только загружаемые, здесь есть и системные семейства, допустим, такие как воздуховоды, витражные системы, гибкие воздуховоды, крыши, лестницы – это все загружаемые семейства. Здесь сложно найти загружаемые семейства, по большей части, конечно, здесь системные. Где найти отображение этой оси? Все отображения 2D элементов у нас находятся в аннотационных обозначениях, поэтому раскрываем этот список и видим в этой вкладке большой список всех аннотационных обозначений. И теперь ищем где у нас это семейство обозначения оси. Вот оно у нас собственно присутствует – это «ADSK_Марка Оси_ГОСТ21». Скрываем список и здесь у нас как раз два данных типа с диаметром 8 мм и диаметром 10 мм.

— Мы можем спокойно создать новый тип, если это нужно. Давайте я сделаю 14 мм и сделаем ему радиус 7 мм. Я создал новый тип для обозначения оси.

— Теперь если я посмотрю в свойствах уже системного семейства оси, то у меня появился данный тип в списке, вот он. Могу его выбрать спокойно и теперь видно, что моя ось увеличивается. Какая была и какая стала.

— Теперь создадим сетку осей для примера. Для создания осей мы можем выбирать инструмент «Ось» и создавать поочередно, выбирая необходимое нам расстояние. Появляется всегда временный размер, который привязывается к ближайшему элементу, например, сейчас видим значение 3,7. Можно в любой момент, если вам не удобно так искать необходимое значение, можно писать с клавиатуры. Например, вместо 3 метров написать 4 метра. Все пишется в миллиметрах, нажимаем «Entre», задаем начальную точку и задаем конечную точку.

— Здесь работает такой же принцип, как и у уровней, если у нас границы плоскостей совпадают, то при перетаскивании одной оси у нас перетаскиваются сразу же все. Работает и сверху и снизу таким образом.

— Номеруются оси, таким образом, всегда по порядку. Но что делать, если у нас следующая пятая ось пошла в буквенном обозначении? «Revit», конечно же, не понимает, что нам теперь нужно буквенные оси назначать, то здесь нам нужно ее вручную изменить. Вместо «6» пишем «А» и теперь уже в дальнейшем новые оси будут создаваться уже с буквенной нумерацией. Помимо того что можно просто создавать новые оси, можно просто копировать существующие.

— Если я выделю ось и нажму во вкладке «Изменить» кнопку «Копировать», здесь есть инструменты для изменения элементов, их обозначения абсолютно такое же, как и в «AutoCAD». Если новый «AutoCAD» видели, то значки все такие же абсолютно. Таким образом, копируем и в любом случае нумерация оси будет изменяться.

— И сейчас будет такой важный момент. Давайте сейчас с вами создадим разрезы. Каким образом создается разрез? Разрез создается во вкладке «Вид» либо на панели быстрого доступа. Панель быстрого доступа находится вверху окна там, где кнопки «Открыть», «Сохранить», «Печать» и так далее. Есть кнопка «Разрез». В эту панель быстрого доступа вы можете размещать какие-то свои команды.

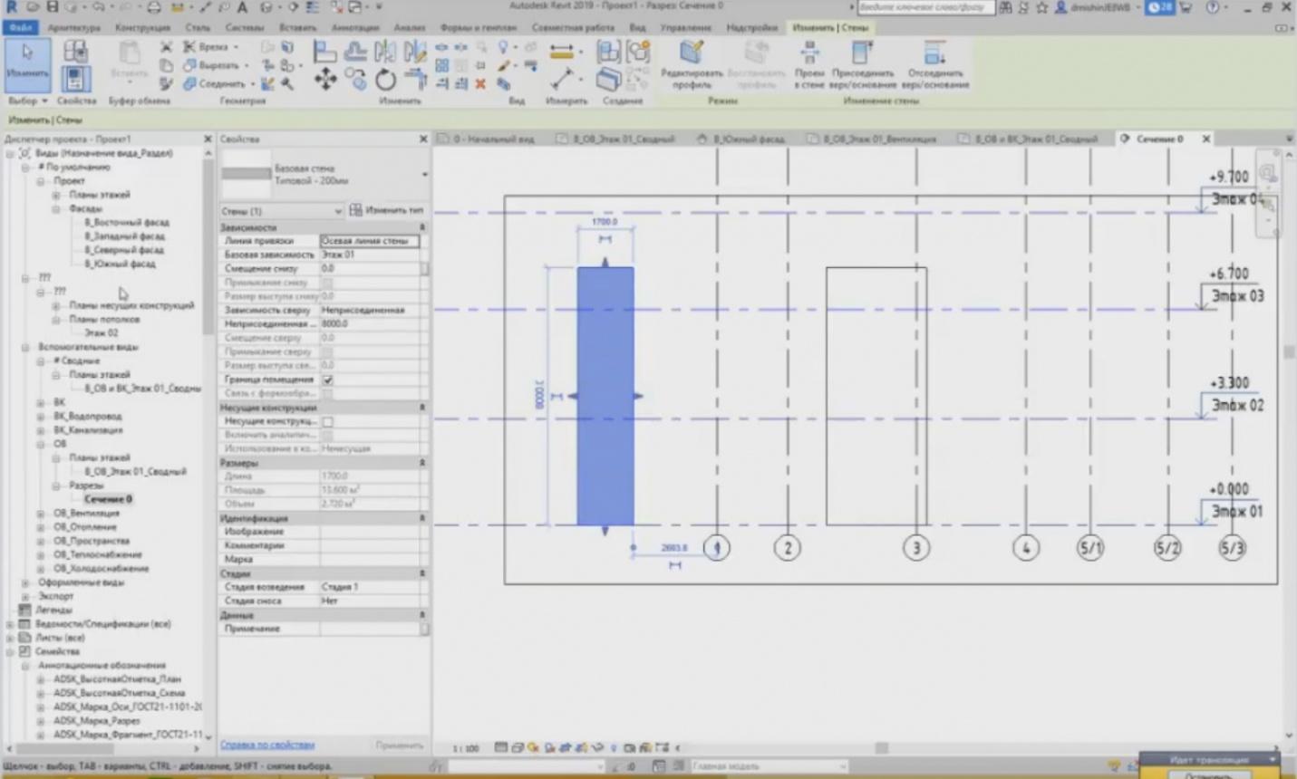
— Нажимаем на кнопку «Разрез» и также как и для планов этажей, мы можем выбирать тип разреза. Типы мы выбираем в окне свойств. Раскрываем и видим, что у нас различных разрезов очень много для различных задач. Допустим, разрез для водопровода, для канализации, для вентиляции, для отопления и так далее. Так как у нас ОВ давайте выберем, допустим, разрез для ОВ. Точно также как и оси, задаем начальную точку и задаем конечную точку.

— Задали начальную точку и рисуем, каким образом у нас должен закончиться разрез. Нарисовали конечную точку, и у нас получилась такая пунктирная линия. Что эта пунктирная линия обозначает? Эта пунктирная линия обозначает границы нашего разреза. Собственно все, что не входит в этот прямоугольник показываться не будет.

— Давайте для примера я нарисую стену тут, другу здесь и еще одну таким образом. Видно, что по идее у меня должна на разрезе появиться только эта стена. Для перехода на разрез я могу воспользоваться «Диспетчером проекта», чтобы найти этот разрез. У нас в ОВ появилась вкладка «Разрезы» - «Сечение 0». Либо просто способ гораздо удобнее: выделяем разрез правой кнопкой мыши «Перейти к виду».

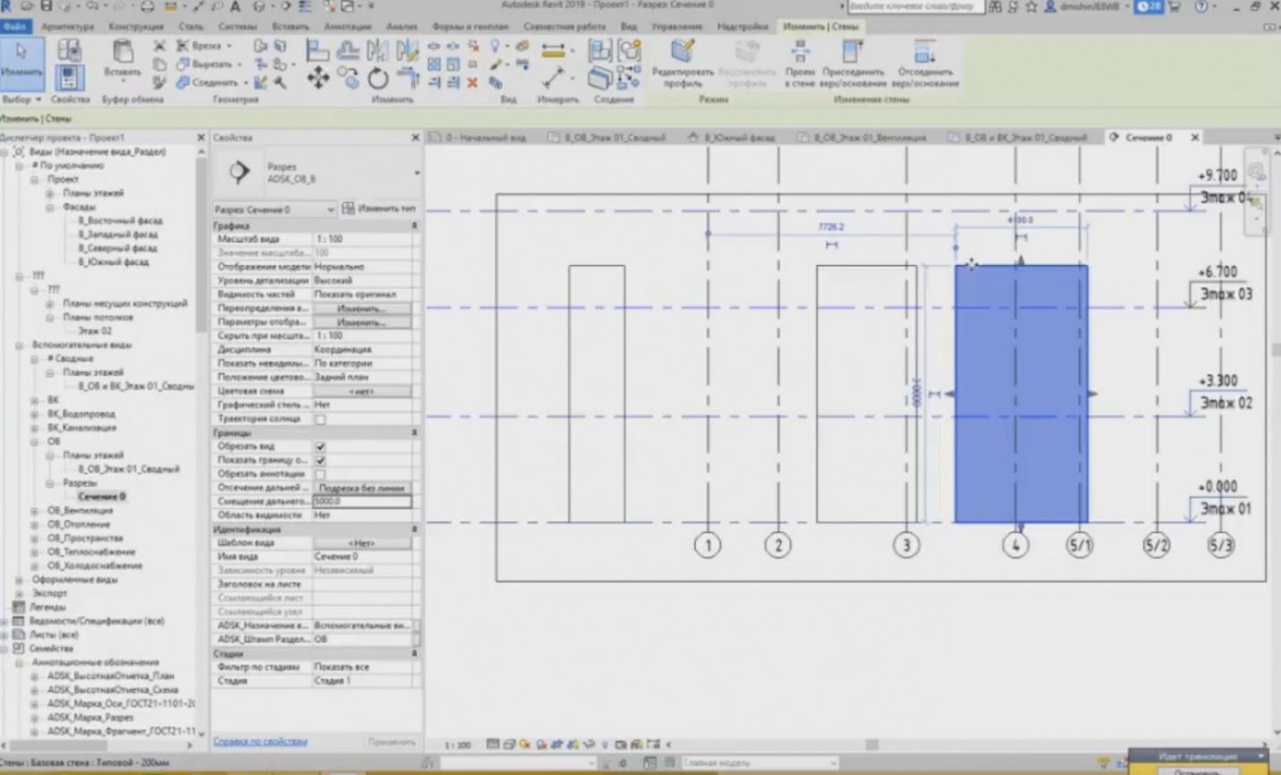
— И что мы здесь видим? Мы здесь видим только одну стену, которую я создал, но остальные стены мы не видим. У разрезов есть такая область подрезки, ее тоже можно изменять.

— С изменением области подрезки у нас изменяется отображение разреза. Что мы видим на нем?

— Допустим, если я потяну слева, то я увижу стенку, которую я нарисовал сбоку.

— Теперь, если я выделю разрез, то я увижу, что у меня этот прямоугольник стал больше, он уже эту стенку показывает, но не показывает другую стенку. Каким образом я могу настроить границу проецирования, насколько глубоко разрез будет виден?

— Сейчас глубину проецирования можно изменить при помощи перетаскивания этого элемента, этих двух стрелочек – это первый вариант.

— Либо второй вариант в «Свойствах» разреза у нас есть параметр «Смещение дальнего предела секущего диапазона». Это значение, допустим, можно поставить 5 метров, вот он увеличился.

— Теперь соответственно, если я перейду на этот разрез, я увижу последнюю мою стену. Собственно таким же образом работают и создания фасадов.

— При создании фасада, к сожалению, здесь (сейчас я перейду на координационный план) при создании фасада, он создается немного по-другому. Мы не назначаем начальную и конечную точку, мы просто назначаем, с какой стороны мы будем на элемент смотреть. Он привязывается к элементам.

— Видите, он видит грань этой стены и сразу же меняет свое положение. Если я с этой стороны смотрю, он мне будет показывать справа, если с другой стороны смотрю, то он мне будет показывать сверху. При создании появляется наш вид, наш фасад.

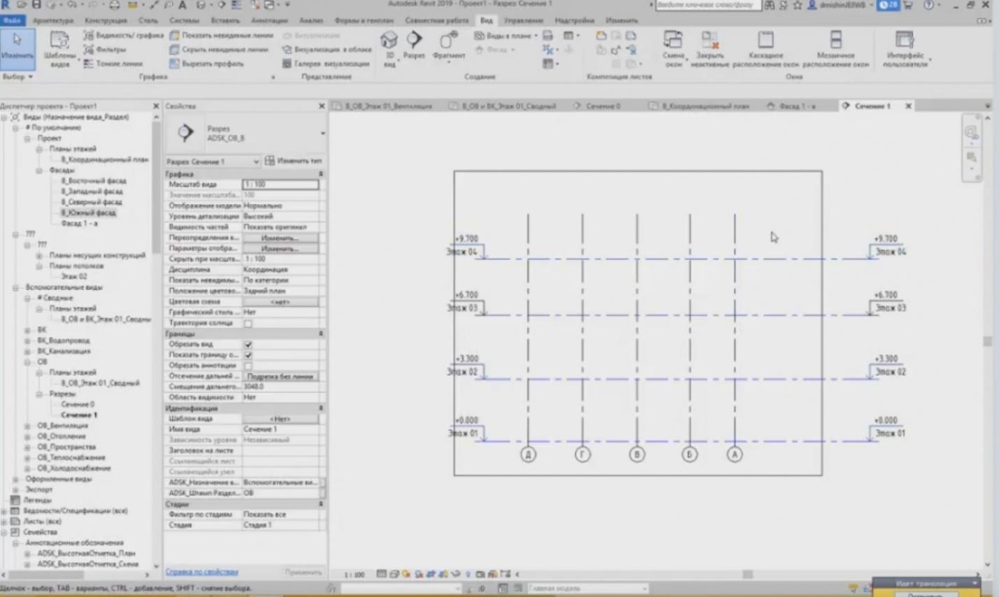
— Фасад собственно сильно не отличается от разреза, отображение абсолютно такое же. И очень важная информация как раз по поводу того, почему очень важно понимать, что оси и уровни у нас являются плоскостями.

— Я создал разрез и собственно, если я на него перехожу, то я вижу, что у меня есть оси, что у меня есть уровни. Но что будет, если я сейчас создам, таким образом, разрез? Допустим, у меня здесь есть много различных осей, и я создаю разрез в этом месте. Теперь если я перейду на него, то, что я вижу?

— Я вижу, что оси у меня отображаются, а уровней нет. Очень частая проблема в том, что не видно уровней. Как эту проблему решить и почему она вообще происходит?

— Если я перейду на какой-то южный фасад, то я увижу, что моя плоскость разреза, где она проходит, и вот где проходят мои уровни. Уровни, как я вижу, не достигают разреза, соответственно для того чтобы мне видеть линию проецирования уровня, мне нужно чтобы две эти плоскости пересекались обязательно.

— Поэтому для того чтобы видеть уровни я плоскости разреза довожу до пересечения с разрезом.

— Теперь если я перейду на этот вид, то у меня эти уровни отображаются. Вот таким образом это работает. Важно понимать, что уровни и оси у нас являются плоскостными элементами. И для того чтобы этот элемент увидеть, нам нужно задать пересечение двух плоскостей. А как раз пересечение двух плоскостей является эта линия проецирования.
У меня на этом все. Для подведения итогов: первое, что мы сегодня узнали – то, что у нас уровни и оси являются элементами, состоящими из дополнительных семейств – это обозначение, само семейство уровней и осей – это системное семейство, но также в нем присутствует семейство обозначений, которое является загружаемым семейством. Второе – то, что уровни и оси у нас являются плоскостными элементами.

— Например, на этом плане у меня связан уровень «Этаж 01». У меня на этом все, спасибо за внимание! И жду ваших вопросов. Здесь есть уже вопросы.
— Да, Станислав, я вас хотел попросить, перед тем как отвечать, зачитывать вопрос и собственно отвечать.
— «Где можно скачать шаблоны как у вас?». Шаблоны можно скачать на сайте «Autodesk». Проще всего даже на любом поисковике просто забить «Revit. Шаблон» и тот шаблон, который вам нужен. Допустим «Revit. Шаблон ОВ», «Revit. Шаблон АР» и так далее. Он сразу же первым даст ссылку на сайт «Autodesk» и там как раз этот шаблон можно будет скачать.

— Второй вопрос: «Как быть, если одна часть этажа на одном уровне, а другая часть этажа на другом уровне, скажем на 1 метр выше?».
— Да хороший вопрос. Помимо того что у нас есть такой план этажа, и у этого плана этажа есть определенный секущий диапазон, мы можем создать фрагмент плана с другим секущим диапазоном. При помощи этой кнопки мы можем выбирать какую-то область, допустим, если у вас в этой части здания, например, не 0, а -1 метр, то в этой части здания вы создаете такой контур и применяете секущий диапазон, допустим, на -1 метр. И у вас будут отображать элементы на -1 метр относительно этого уровня.

— Следующий вопрос: «Можно ли оси создавать автоматически как массив, указав количество осей по Х и по Y?».
— Да, это возможно. При выделении существующей оси у нас есть кнопка «Массив» и при помощи этой кнопки мы можем изменять.
— Коллеги, у нас небольшая пауза. Напишите, если есть вопросы. У нас как раз есть время, чтобы их разобрать еще 5 – 10 минут. Если вопросов нет, то тогда напишите, что вопросов нет, и тогда будем завершать и заканчивать нашу трансляцию.

— Был вопрос, можно ли создавать массив? У нас есть инструмент «Массив» и мы его используем для создания сразу же нескольких осей. Выбираем количество и, допустим, сделаем сразу же 10 штук с определенным шагом, например, 2 метра. Вот у вас создается сразу же несколько осей, что это в принципе возможно.

— Шрифт по ГОСТу, вы в любом случае можете его изменить, если он вас, допустим, не устраивает. «ГОСТ 21-000» и так далее. Вот как шрифт выглядит, но удовлетворяет, по крайней мере, большинство пользователей.

— Изменение цвета осей тоже возможно, но конечно, для этого нужно будет создавать новые типы осей. Допустим, у нас есть такая черная. Я могу создать новый тип, скопировать существующий и назвать ее «Красная» и выбрать цвет. Теперь она красная. Так как это загружаемое семейство, то видно, что элемент загружаемого семейства свой цвет не изменил. Поэтому чтобы изменить цвет загружаемого элемента, нужно тогда изменять его в «Редакторе семейств», но это чуть сложнее.
— «Какая наша конечная цель?».
— Коллеги вопросы по конечной цели, наверное, я поясню. Цель проведения наших вебинаров, прежде всего – это дать вводную информацию по технологии BIM и по возможности использования ее с помощью «Revit». Это та информация, которую мы дадим и, конечно, нам будет приятно, если в конечном итоге вы с помощью этих инструментов будете закладывать в проекты по молниезащите и заземлению наше оборудование. Но цель именно вебинаров – дать знание, дать информацию, дать инструмент.

— «Как лучше делать примечания и общие указания?».
— Примечания лучше делать при помощи текстовых примечаний, допустим, на листе. Здесь уже представлен, например, определенный лист и вы здесь можете создавать примечания и писать там первое, второе и так далее. Можно создавать, таким образом, а можно создавать при помощи инструмента «Легенда». При помощи этого инструмента мы можем создавать такие примечания, условные обозначения, которые мы потом можем выносить на листы, либо второй вариант – это при помощи текста уже непосредственно на листе пишем какую-либо информацию таким образом.
— Коллеги, мы видим, что вопросов больше нет. Спасибо огромное, Станислав. Спасибо вам, участники, за то, что присутствовали. Регистрируйтесь обязательно на следующие вебинары. Напомню, что следующий вебинар из этой серии состоится 20 июня, приходите, и обязательно участвуйте. На всякий случай еще раз отправлю вам ссылку на серию вебинаров в чат. На этом будем заканчивать.
— Всем спасибо за просмотр. До свидания!
<< Предыдущая страница
слайды с 3 по 4
Следующий вебинар >>
Смотрите также:


