13.07.16
В 2012 году Центр Знаний ZANDZ.com принимал участие в разработке технической документации и поставке заземления для объектов инфраструктуры Олимпийских игр 2014 в г. Сочи. Олимпийских объектов было более 150, подрядчиком выступала компания ОАО “СКЭРК”, специализирующая на строительстве заземляющих устройств в сложных слоях грунта. Ранее подрядчик использовал в своих работах прокат черной стали, но рассмотрев предоставленную документацию о продукции ZANDZ, принял решение в пользу омедненных стержней. Отчет с одного из объектов, а именно, протокол измерения сопротивления заземляющего устройства мы хотели бы вам показать.
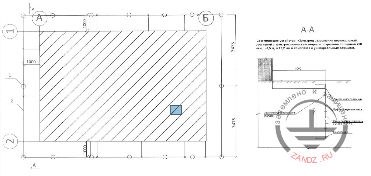
Объектом заземления являлась БКТП 6 — блочная комплексная трансформаторная подстанция, расположенная в Имеретинской низменности. Для создания заземляющего контура потребовалось 16 электродов, выполненных из омедненной стали длиной 1,5 метра и диаметром 17,2 мм. Заземлители были установлены на глубине 7,5 метров с расстоянием 20 метров друг от друга. Соединением стержней послужила стальная полоса, заложенная на глубине 0,7 метров.

Исполнительная схема устройства внешнего контура заземления
Соединение вертикальных омедненных заземлителей к магистрали заземления было выполнено болтовыми зажимами, а соединение горизонтальной шины сваркой в внахлест. К заземляющему устройству было применено требование для электроустановок напряжением до и выше 1 кВ, которое согласно п. 1.8.39 ПУЭ гласит, что удельное сопротивление растеканию тока должно быть не больше 4 Ом*м. После проведенного измерения прибором SEW 1820 ER была зафиксирована величина сопротивления в 2,4 Ом, что соответствует заданным требованиям.

Протокол измерения сопротивления заземляющего устройства
Документация, представленная выше, демонстрирует соответствие продукции ZANDZ и GALMAR общепринятым нормам и правилам устройства заземления для электроустановок. Приведенный проект доказывает, что можно успешно заменять традиционный черный металл омедненной сталью. Подробный отзыв от компании ОАО “СКЭРК”, о достоинстве омедненных стержней вместо используемого ранее проката черной стали читайте здесь. Напишите нам свое мнение о продукции ZANDZ и GALMAR!
[ Код новостного блока для вставки на Ваш сайт ] [ RSS лента для подписки на новости ]

